Wird geladen...

Sun-drenched chalet with unobstructed panoramic views in a prime location in Reith

This extraordinary chalet is a true sanctuary for even the most discerning tastes. With an impressive living/floor area of approximately 550 m², this exclusive property combines Alpine coziness with modern luxury and offers a top-class residential experience. The chalet's sophisticated architecture is reflected in its overall interior design, harmoniously combining aesthetics, functionality, and elegance across three levels. Additionally, floor-to-ceiling panoramic windows offer breathtaking views of the unobstructed natural surroundings and impressive mountain scenery in all directions.

  • Unique sunny location in
    an idyllic natural setting
  • Breathtaking panoramic
    views of the Kitzbüheler Horn
    and Hahnenkamm mountains
  • Exclusive neighborhood
  • Wraparound balconies/terraces
    with outdoor seating
  • 10 m stainless-steel indoor pool
  • Wine room
  • Home cinema
  • Gym

Location
Reith near Kitzbühel

In a privileged sunny hillside location in Reith near Kitzbühel, this chalet offers a perfect symbiosis of tranquility, privacy, and spectacular views of the surrounding mountains – from the Kitzbüheler Horn to the Hahnenkamm. The property's appeal lies not only in its sunny orientation, but also its exclusive neighborhood, which guarantees sophisticated living in an Alpine setting. The idyllic natural moor lake Gieringer Weiher and the Schwarzsee lake, the 18-hole golf course Kitzbühel-Schwarzsee-Reith, well-maintained cross-country ski trails in winter, and numerous walking and cycling trails are all within walking distance, offering relaxation and active leisure activities right on your doorstep.

The charming village of Reith combines Alpine lifestyle with a village character, while the vibrant center of Kitzbühel, the renowned Kitzbühel Country Club, and all the amenities of the region are just a few minutes away. This chalet is an exclusive retreat for those seeking tranquility, sunshine, and Alpine quality of life—while enjoying the first-class infra-structure of Kitzbühel in the immediate vicinity.

GOOGLE MAPS

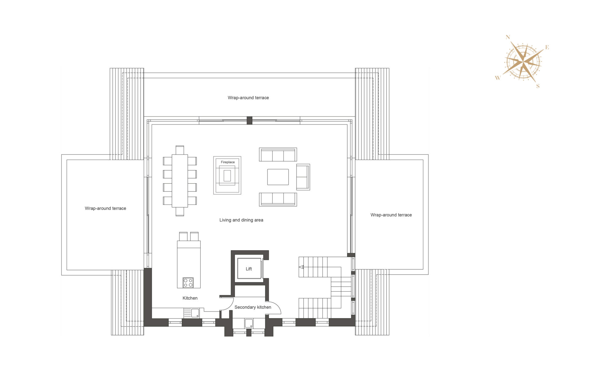
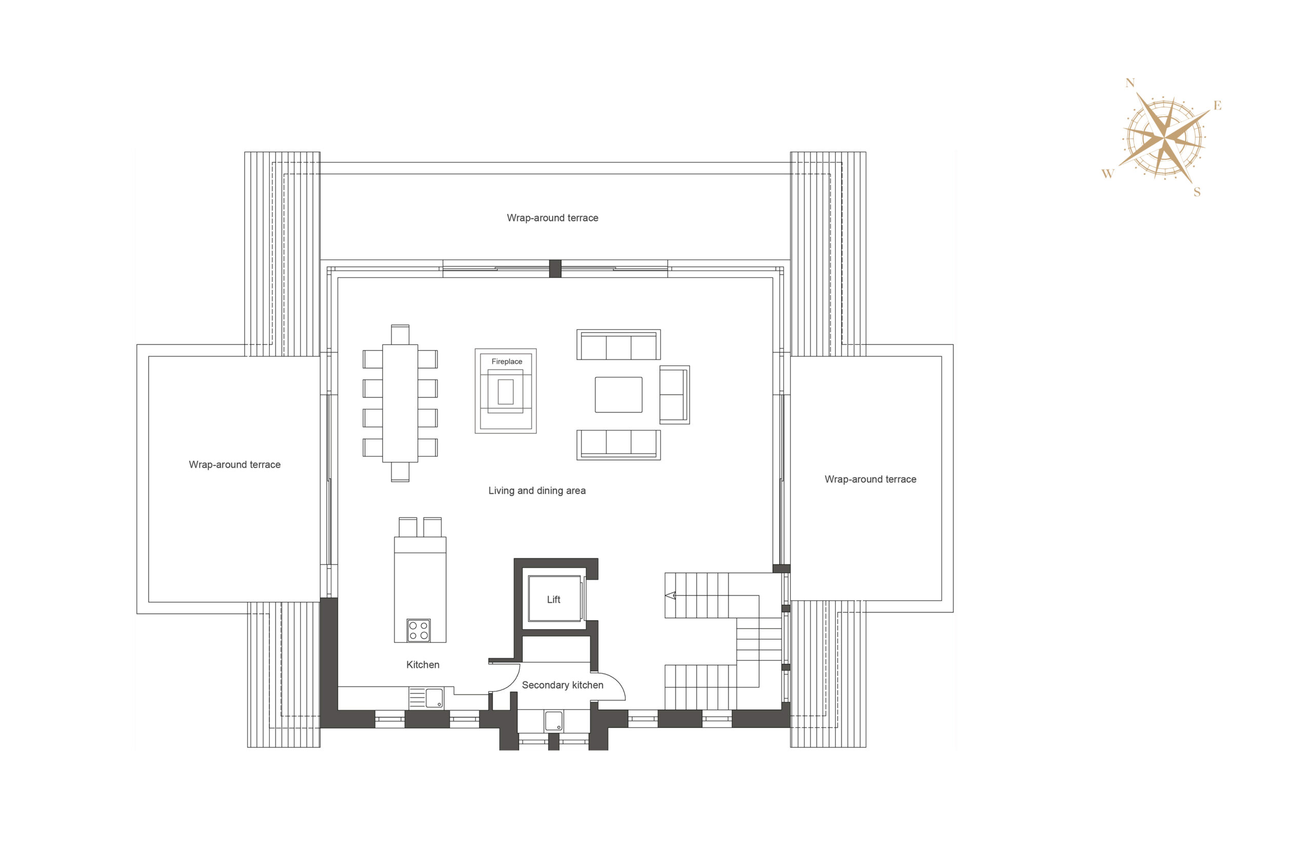
Floor Plan

Main entrance
3 bedrooms each with
an en-suite bathroom
Master bedroom with walk-in
closet and en-suite bathroom
Guest toilet
Lift

Living-dining area with kitchen
Back kitchen
Terrace access
Lift

Spa area with approx. 10 m indoor
pool, sauna, steam bath, rain shower,
and relaxation zone
Garden access
Entrance area with wardrobe
Guest toilet
Guest bedroom with en-suite bathroom
Home cinema
Utility room
Gym
Underground parking access
Lift

Technical rooms

Object Details

  • Property Chalet
  • Year of construction 2019
  • Floors 3
  • Condition as new
  • Availability immediately
  • Plot size 1,058 m2
  • Total floor area approx. 856 m2
  • Living/floor area approx. 550 m2
  • Terraces and balconies approx. 191 m2
  • Garden yes
  • Rooms 6
  • Bedrooms 5
  • Bathrooms 5
  • Lift yes
  • Spa area yes (with 10 m stainless-steel indoor pool, sauna,
    steam bath, rain shower, relaxation area)
  • Home cinema yes
  • Wine room yes
  • Technical rooms yes
  • Utility room yes
  • Garage car parking spaces 3-4 car parking spaces
  • Outdoor car parking spaces yes
  • Heating type natural gas, air-source heat pump
    for controlled ventilation in living
    and sleeping areas, underfloor heating
  • HED 31.59 kWh/m2a
  • Purchase Price € 12.9 million
  • Commission 3 % plus 20 % VAT.

Request Exposé

Thomas Hopfgartner, MBAFOUNDER & OWNER

thomas.hopfgartner@livingdeluxe.com
+43 664 53 15 300

PROPERTIES FOR SALE

The mission of LIVING DELUXE Real Estate is to bring quality, exclusivity and luxury to the world. With our outstanding properties, we inspire people with high aspirations to live in an incomparable home.