Wird geladen...

Seltenes Wörthersee-Juwel – Seeliegenschaft in erster Reihe

Diese außergewöhnliche Seeliegenschaft gehört zu den seltensten und begehrtesten Adressen am Wörthersee. In absoluter Erstreihe gelegen, offenbart sich ein einzigartiges Schauspiel aus Wasser, Licht und Natur: ein 180-Grad-Panorama, das den Blick über das türkisfarbene Wasser hinauf nach Maria Wörth über den Pyramidenkogel bis nach Velden schweifen lässt – ein Ausblick, der jeden Moment zu etwas Besonderem macht. Das Grundstück verfügt über eine der kostbarsten Widmungen, die der Wörthersee zu bieten hat: eine echte Zweitwohnsitzwidmung. Sie verleiht dieser Liegenschaft eine Exklusivität, die kaum mehr am Markt zu finden ist, und schafft eine außergewöhnliche Freiheit in der Nutzung. Der private Badesteg mit eigenem Bootsanlegeplatz eröffnet den direkten Zugang zum Wasser – ein unvergleichbares Privileg, das den Charakter eines persönlichen Rückzugsortes am See unterstreicht.

  • Erstreihe direkt am Wörthersee
    mit unverbaubarem
    180°-Panoramablick
  • Seltene Zweitwohnsitzwidmung (Freizeitwohnsitz) – außergewöhnlich und wertbeständig
  • Privater Badesteg mit
    eigenem Bootsanlegeplatz
  • 523 m² Seegrundstück
    mit rund 22 m Uferlänge
  • Ausbaupotenzial dank GFZ 0,6
    (derzeit ca. 0,47 genutzt)
  • Charmantes Bestandsensemble
    mit Wohnhaus, Atelier und Garçonnière
  • Südorientierung für Sonne
    von morgens bis abends
  • 2 Carports für zwei Fahrzeuge
    und zusätzliche Außenflächen
  • Klimaanlage für angenehme Sommertemperaturen
  • Absolute Privatsphäre in einer der begehrtesten und seltensten Buchten des Wörthersees

Lage
Techelsberg am Wörthersee

Diese außergewöhnliche Seeliegenschaft befindet sich in Saag, einer der begehrtesten Lagen am Nordufer des Wörthersees. Die ruhige, südlich ausgerichtete Position bietet ganztägige Sonne und einen unverstellten Blick über das glasklare Wasser bis nach Maria Wörth und Velden. Trotz der idyllischen Privatlage besteht eine hervorragende Anbindung: Pörtschach und Velden sind ebenso in wenigen Minuten erreichbar wie erstklassige Restaurants, Boutiquen und exklusive Freizeitangebote. Der Zugang erfolgt über eine charmante Uferstraße, die absolute Ruhe garantiert und doch Nähe zu allen wichtigen Einrichtungen bietet. Die Kombination aus Privatsphäre, Seezugang und bester Infrastruktur macht Saag zu einer der seltensten und wertstabilsten Wohnlagen des gesamten Wörthersees.

GOOGLE MAPS

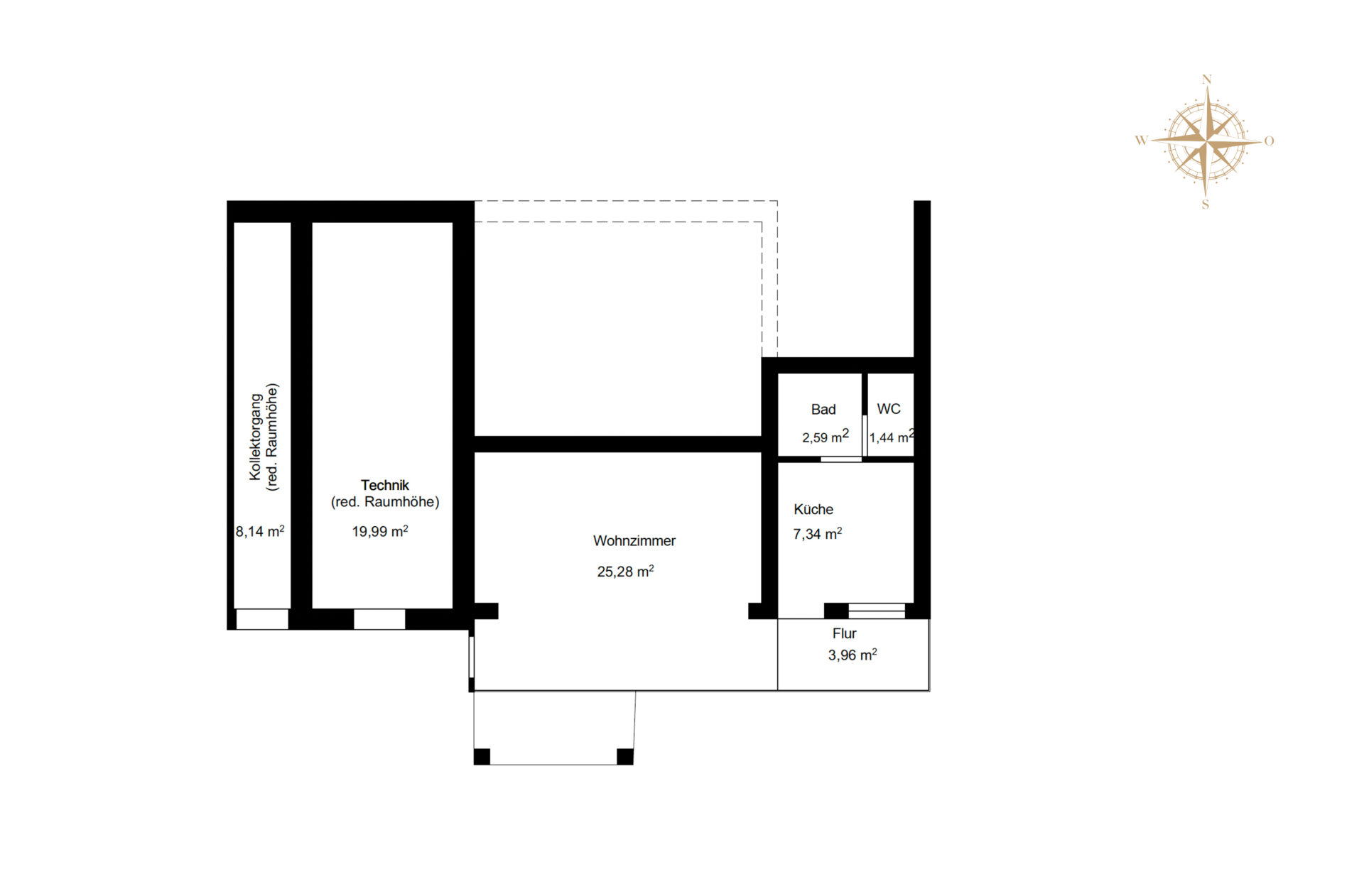
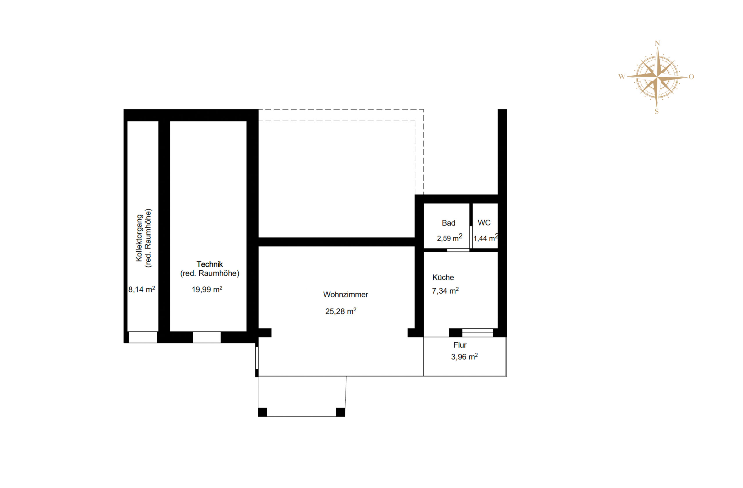
Raumaufteilung

Flur
Wohnzimmer
Esszimmer
Küche
Schlafzimmer 1
Schlafzimmer 2
Badezimmer 1
Badezimmer 2
WC
AR
Terrasse

Flur
Küche
Badezimmer
WC
Wohnzimmer
Technik
Kollektorgang

Objektdetails

  • Objektart Wohnhaus
  • Ort Techelsberg
  • Baujahr 1960
  • Geschosse 2
  • Zustand teilsaniert
  • Verfügbarkeit ab sofort
  • Grundstücksfläche 523 m2
  • Wohn-Nutzfläche 145 m2 plus 29 m2 Atelier (vormals Garage)
  • Terrassenfläche ca. 10 m2
  • Steg ja
  • Zimmer 5
  • Schlafzimmer 2
  • Badezimmer 2
  • WC 1
  • Lagerraum ja
  • Keller ja
  • PKW-Carportstellplätze 2
  • Heizungsart Öl
  • HWB 282 kWh/m2a
  • fGEE 3,07
  • Kaufpreis € 3,59 Mio.
  • Vermittlungsprovision 3 % zzgl. 20 % USt.

Exposé anfordern

Alexander PragerLIVING DELUXE AMBASSADOR WÖRTHERSEE

alexander.prager@livingdeluxe.com
+43 664 882 54 121

WEITERE PREMIUM-IMMOBILIEN

Die Mission von LIVING DELUXE Real Estate ist es, Qualität, Exklusivität und Luxus in die Welt zu tragen. Mit unseren herausragenden Immobilien inspirieren wir Menschen mit hohem Anspruch, in einem unvergleichbaren Zuhause zu leben.