Wird geladen...

Einzigartiger Rückzugsort: Grundstück in Alleinlage inklusive genehmigtem Neubauprojekt

In idyllischer Alleinlage zwischen Kirchberg und Aschau präsentiert sich dieses sonnige Grundstück mit traumhaftem Panoramablick auf die Kitzbüheler Alpen. Absolute Ruhe, ganztägige Sonne und die umliegenden Almen verleihen der Liegenschaft ein unvergleichliches Gefühl von Privatsphäre und Exklusivität. Die genehmigte Planung sieht eine Gesamtnutzfläche von rund 764 m² vor und verbindet alpine Architektur mit modernem Wohnkomfort.

Ein besonderes Highlight sind die großzügig geplanten Außenbereiche mit Infinity-Pool, Poolhaus und Outdoor-Küche, die den Blick in die Berge eindrucksvoll inszenieren. Ergänzt wird das Konzept durch einen exklusiven Wellness- und Fitnessbereich mit Sauna, Dampfbad, Ruhe- und Massageraum.

  • Idyllische Alleinlage auf einem sonnigen Hochplateau
  • Atemberaubende Bergblicke
    und perfekte Anbindung ans Kitzbüheler Skigebiet
  • Genehmigtes Projekt mit gut durchdachtem Raumkonzept
  • Großzügige Tiefgarage
  • Exklusive Wellness-Oase mit Sauna, Dampfbad, Ruhebereich, Fitness- und Massageraum
  • Geplante Outdoor-Highlights: Infinity-Pool, Poolhaus,
    Outdoor-Küche und
    mehrere Sonnenterrassen

Lage
6353 Kirchberg in Tirol

Auf einem sonnigen Hochplateau, in unverbaubarer Sonnenlage zwischen Kirchberg und Aschau, nahe der Pengelstein-Abfahrt, befindet sich dieses exklusive Grundstück mit genehmigter Projektierung. Umgeben von unberührter Natur bietet es absolute Ruhe und einen atemberaubenden Blick auf die umliegende Bergwelt. Die nach Südwesten ausgerichtete Liegenschaft ist der perfekte Ausgangspunkt für Sommer- wie Wintersport: Vom Skigebiet Kitzbühel-Hahnenkamm erreicht man das Chalet bequem über verschneite Wiesen, ohne Umwege oder Verkehr, während im Sommer Sport- und Naturbegeisterte voll auf ihre Kosten kommen – wandern, Rad fahren und spazieren in unberührter Natur!

GOOGLE MAPS

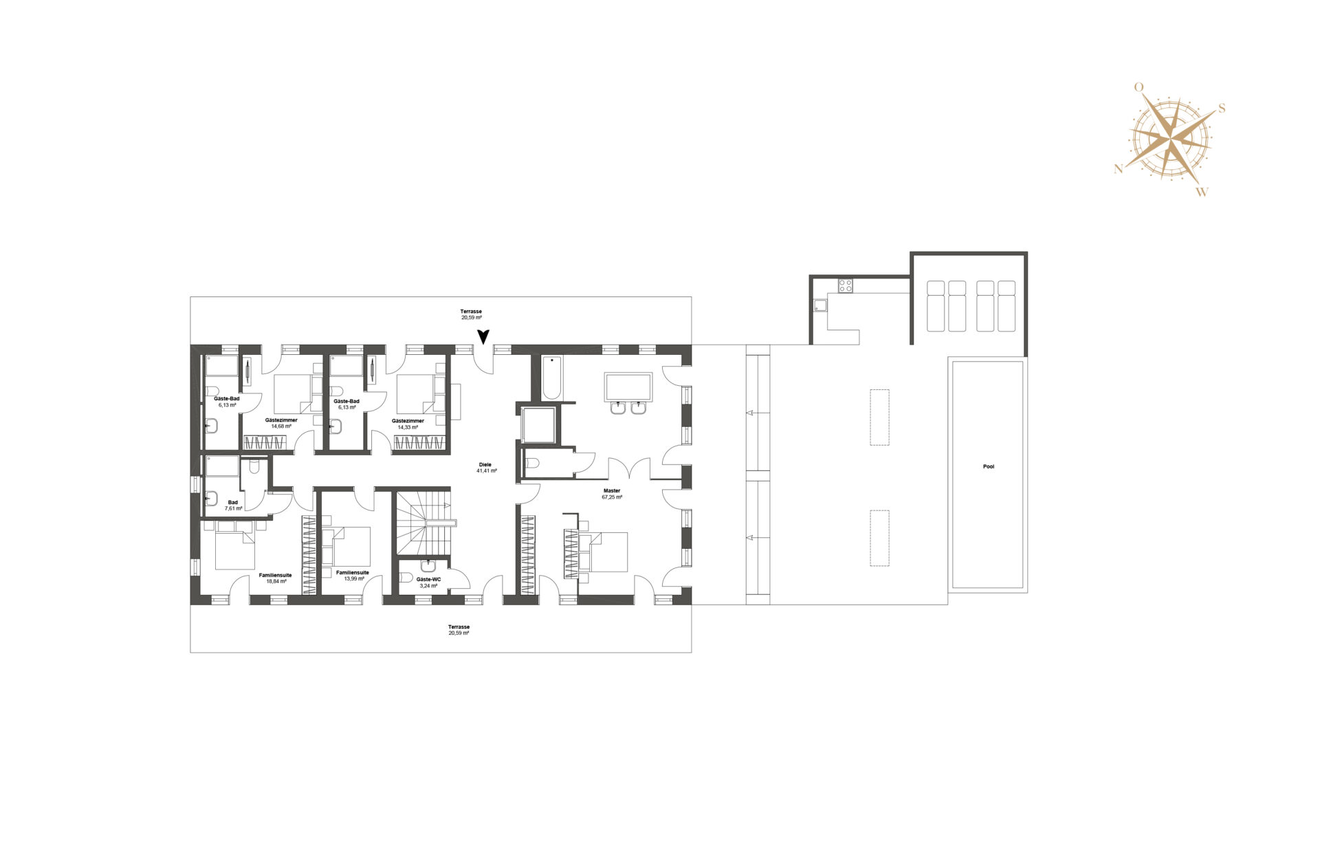
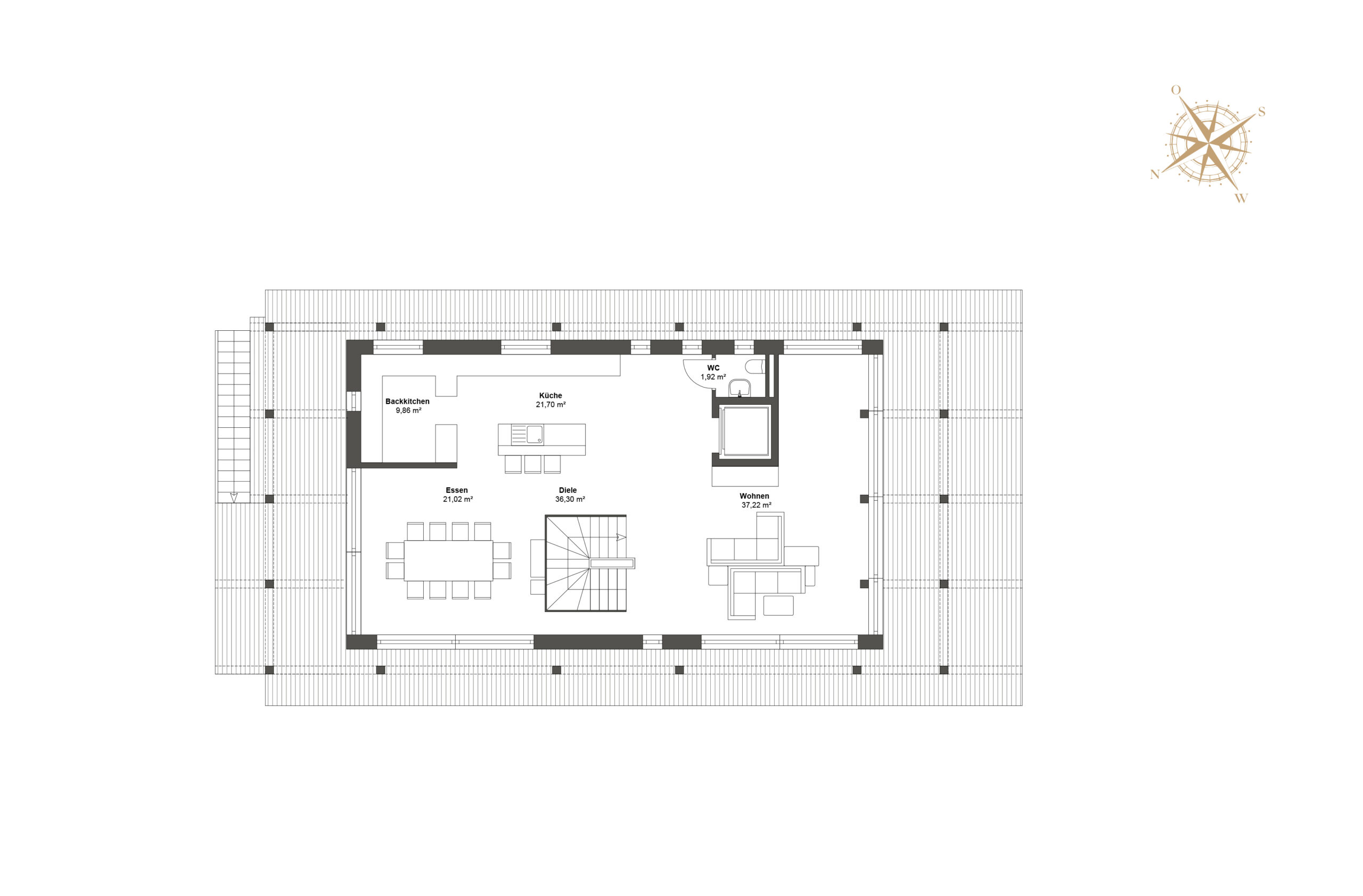
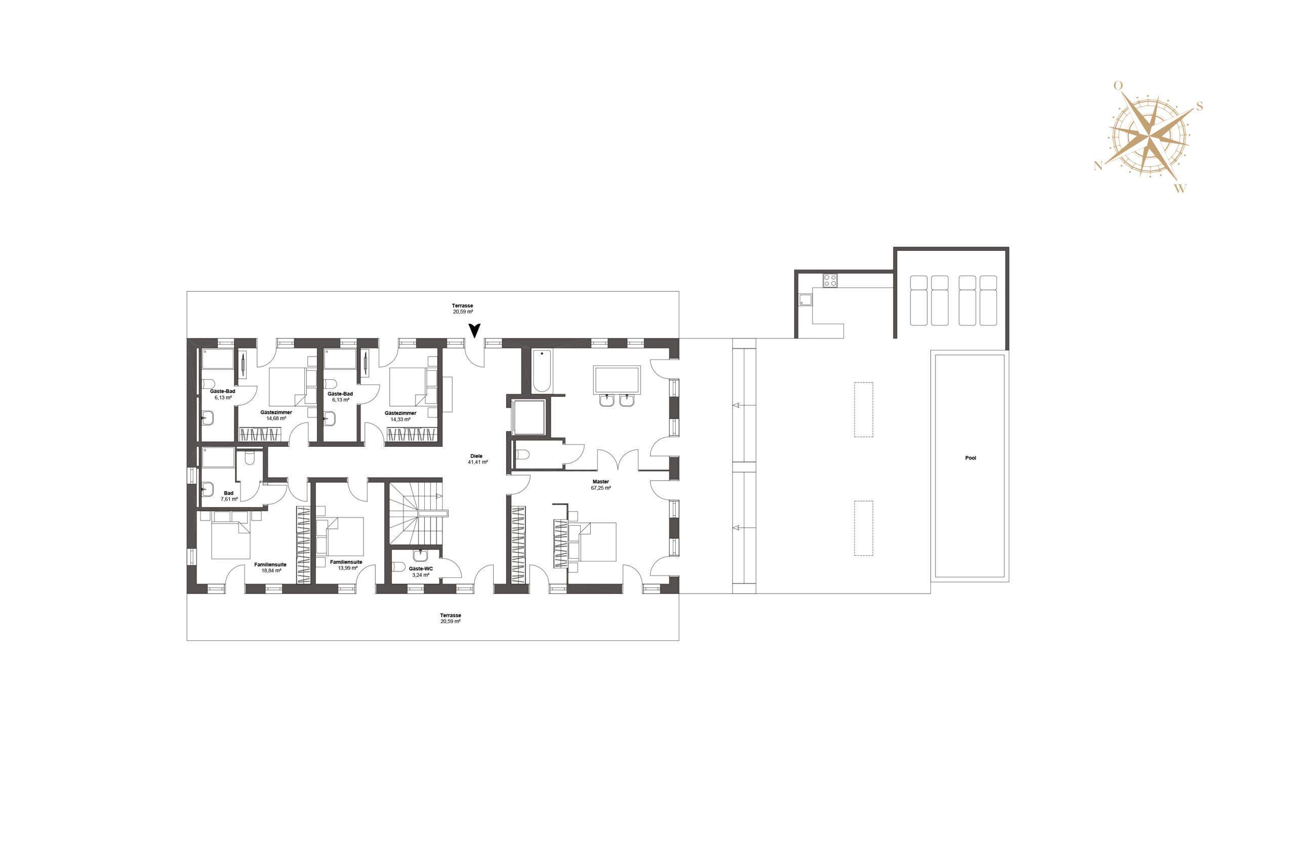
Raumaufteilung

Diele
Gäste-WC
Master-Bereich mit Ankleide
und Badezimmer en suite
4 Gästezimmer mit
jeweils Badezimmer en suite
Terrassen-Zugang zum
Outdoor-Bereich mit Pool

Wohnzimmer
Essbereich
Küche
Back-Kitchen
Gäste-WC
Lift

Tiefgarage
Landing-Bereich
Weinkeller
Massageraum mit eigenem Badezimmer
Fitnessbereich
Wellnessbereich mit Sauna, Dampfbad,
Dusche, WC, geräumiger Ruhebereich
Sportgarderobe
Technikraum

Objektdetails

  • Objektart Grundstück mit Baugenehmigung
    für Luxus-Chalet
  • Geplante Geschosse 3
  • Zustand Erstbezug
  • Verfügbarkeit ab sofort
  • Grundstücksfläche ca. 1.885 m²
  • Geplante Wohn-Nutzfläche ca. 764 m²
  • Geplante Terrassen- & Balkonfläche ca. 222 m²
  • Garten laut Planung ja (mit Lounge, Poolhaus
    und Outdoor-Pool)
  • Schlafzimmer laut Planung 5
  • Lift laut Planung ja
  • Wellnessbereich laut Planung ja
  • Weinlounge laut Planung ja
  • PKW-Garagenstellplätze laut Planung 5-6
  • PKW-Außenstellplätze laut Planung 3
  • HWB in Arbeit
  • Kaufpreis auf Anfrage
    (Altbestand mit genehmigter Projektierung)
  • Vermittlungsprovision 3 % zzgl. 20 % USt.

Exposé anfordern

Nicola KnollLIVING DELUXE AMBASSADOR KITZBÜHEL

nicola.knoll@livingdeluxe.com
+43 664 41 65 558

WEITERE PREMIUM-IMMOBILIEN

Die Mission von LIVING DELUXE Real Estate ist es, Qualität, Exklusivität und Luxus in die Welt zu tragen. Mit unseren herausragenden Immobilien inspirieren wir Menschen mit hohem Anspruch, in einem unvergleichbaren Zuhause zu leben.