Wird geladen...

Sonniges Baugrundstück mit Altbestand inklusive 100 % Freizeitwohnsitz-Widmung

Dieses sonnige Grundstück mit Altbestand und äußerst seltener 100 % Freizeitwohnsitz-Widmung liegt in idyllischer Lage in Aurach und bietet außergewöhnliches Entwicklungspotenzial. Neben einem stilvollen Neubau besteht die Möglichkeit, den Altbestand umzubauen und auf insgesamt 217 m² Wohnfläche (oberirdisch) zu erweitern – ohne Verlust der begehrten 100%igen Widmung. Das Untergeschoss kann beliebig erweitert werden und bietet ideale Voraussetzungen für einen exklusiven Wellness- und Fitnessbereich sowie eine komfortable Tiefgarage. Das weitläufige Grundstück eröffnet zudem vielfältige Möglichkeiten für einen attraktiven Außenbereich mit Pool, großzügigen Terrassenflächen und Outdoor-Kitchen – perfekt für entspannte Stunden und gesellige Abende inmitten der Natur und der beeindruckenden Tiroler Bergwelt.

  • Unverbaubarer
    Blick auf die Berge
  • Ruhige, idyllische Lage mit absoluter Privatsphäre
  • 100 % Freizeitwohnsitz
  • Hervorragende Planung
  • Bevorzugte Wohngegend
  • Vielfältige Entwicklungsmöglichkeiten

Lage
6371 Aurach

Aurach liegt im herrlichen Wandergebiet der Kitzbüheler Südberge und inmitten des Skigebietes Kitzbühel zwischen Jochberg und Kitzbühel. Der dörfliche Charakter des kleinen Ortskerns, die verschiedenen Weiler und Siedlungen sowie die herrliche Lage am Fuß der Kitzbüheler Südberge machen Aurach zu etwas Besonderem. Nicht umsonst hat der große Kitzbüheler Architekt und Maler Alfons Walde die Kirche und den kleinen Auracher Dorfplatz häufig als Motiv gewählt und ihnen damit zu weltweiter Berühmtheit verholfen.

GOOGLE MAPS

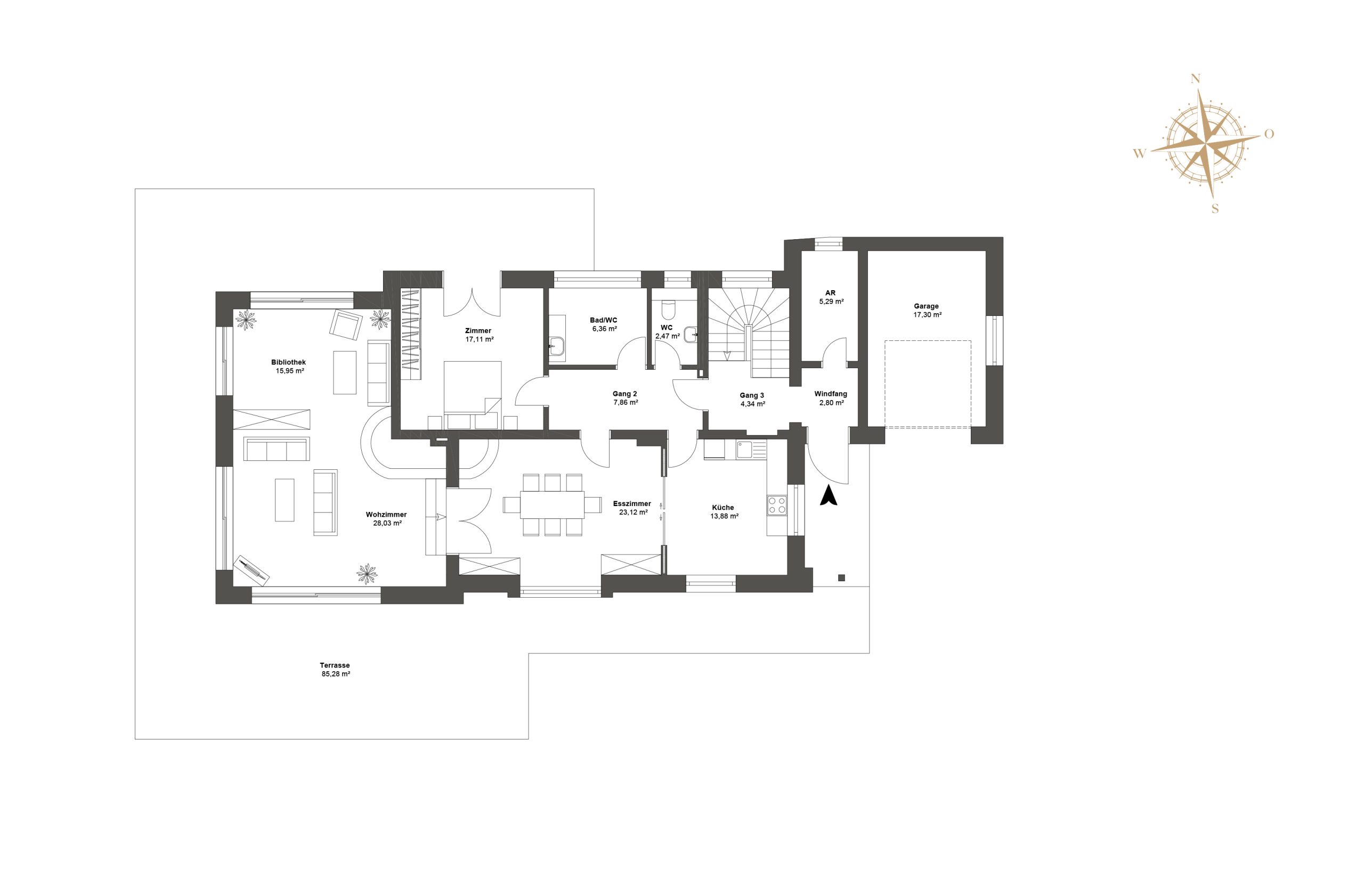
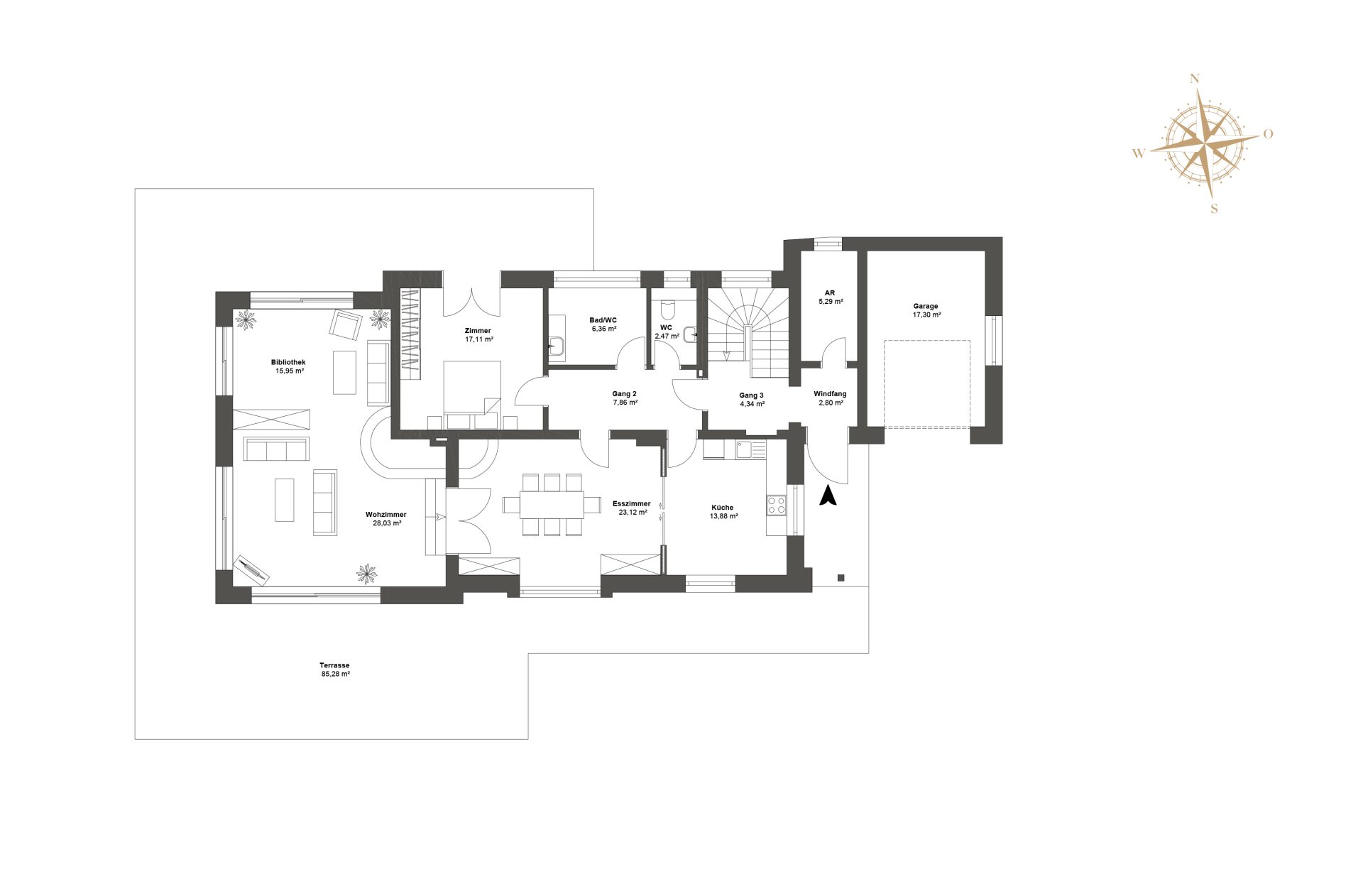
Raumaufteilung

Windfang
Arbeitsraum
Gang
Küche
Esszimmer
Wohnzimmer
Bibliothek
Zimmer
Badezimmer
WC
Garage
Terrasse

Gang
Zimmer
Badezimmer
Schrankraum
Gästezimmer
Kinderzimmer 1
Kinderzimmer 2
Teeküche
Badezimmer
WC
Terrasse

Objektdetails

  • Objekt Grundstück mit Altbestand
  • Ort Aurach bei Kitzbühel
  • Geschosse 3
  • Zustand Altbestand
  • Verfügbarkeit ab sofort
  • Grundstücksfläche 1.032 m²
  • Wohn-Nutzfläche ca. 265 m²
  • Terrassenfläche 100 m²
  • Schlafzimmer 5
  • Badezimmer 3
  • PKW-Garagenstellplätze 1
  • PKW-Außenstellplätze 2
  • HWB in Arbeit
  • Kaufpreis € 6,7 Mio.
  • Vermittlungsprovision 3 % zzgl. 20 % USt.

Exposé anfordern

Nicola KnollLIVING DELUXE AMBASSADOR KITZBÜHEL

nicola.knoll@livingdeluxe.com
+43 664 41 65 558

WEITERE PREMIUM-IMMOBILIEN

Die Mission von LIVING DELUXE Real Estate ist es, Qualität, Exklusivität und Luxus in die Welt zu tragen. Mit unseren herausragenden Immobilien inspirieren wir Menschen mit hohem Anspruch, in einem unvergleichbaren Zuhause zu leben.