Wird geladen...

Charmante Haushälfte mit Freizeitwohnsitz auf der Sonnenseite der Gamsstadt

Auf der begehrten Sonnenseite von Kitzbühel gelegen, besticht diese Doppelhaushälfte mit Freizeitwohnsitz durch Ruhe, lichtdurchflutete Räume und einen unvergleichlichen Ausblick auf die umliegenden Berge. Das Zentrum erreichen Sie bequem in nur 15 Gehminuten. Der offene Wohn- und Essbereich im Erdgeschoss führt direkt auf die sonnige Terrasse und in den gepflegten Garten. Drei großzügige Schlafzimmer mit jeweils eigenem modernen Badezimmer – zwei davon en suite – garantieren höchsten Komfort.

  • Freizeitwohnsitzwidmung in
    exklusiver Sonnenlage von Kitzbühel
  • Fußläufige Erreichbarkeit
    des Stadtzentrums
  • Traumhafter Blick
    auf den Hahnenkamm
  • Vielfältiges
    Entwicklungspotenzial
  • Großzügige Außenflächen
  • Option für Dachbodenausbau

Lage
6370 Kitzbühel

Die Immobilie befindet sich in einer der begehrtesten Wohnlagen von Kitzbühel auf der sonnigen Seite der Stadt. Die Umgebung ist geprägt von Ruhe, gepflegten Wohnhäusern und einer hohen Wohnqualität. Durch die leicht erhöhte Lage eröffnen sich beeindruckende Ausblicke auf die umliegende Bergwelt und bekannte Wahrzeichen der Region. Ein renommiertes Hotelresort mit Wellnessangebot befindet sich in unmittelbarer Nähe und kann bei Bedarf entgeltlich mitgenutzt werden. Auch ein 9-Loch-Golfplatz liegt nur wenige Gehminuten entfernt und unterstreicht den hohen Freizeitwert dieser Lage. Trotz der ruhigen Wohnatmosphäre ist das Zentrum von Kitzbühel mit seinen exklusiven Boutiquen, Restaurants und Cafés bequem fußläufig erreichbar. Die ausgezeichnete Infrastruktur sowie die Nähe zu Sport-, Freizeit- und Erholungsmöglichkeiten machen diese Lage ganzjährig attraktiv.

GOOGLE MAPS

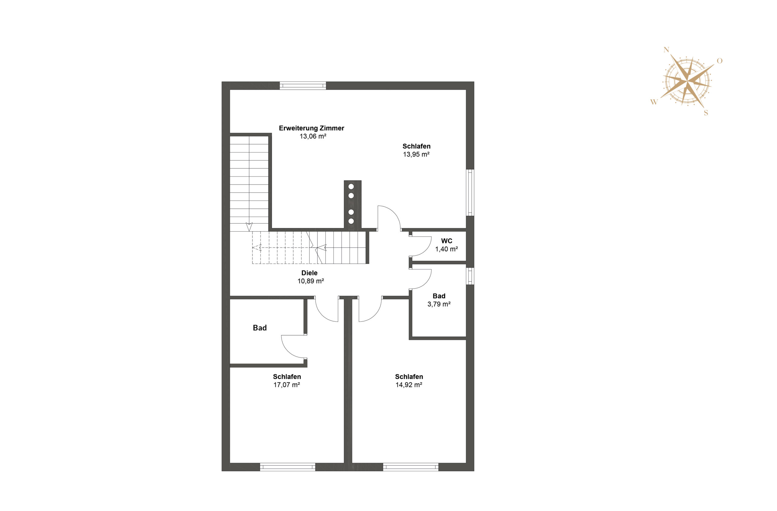
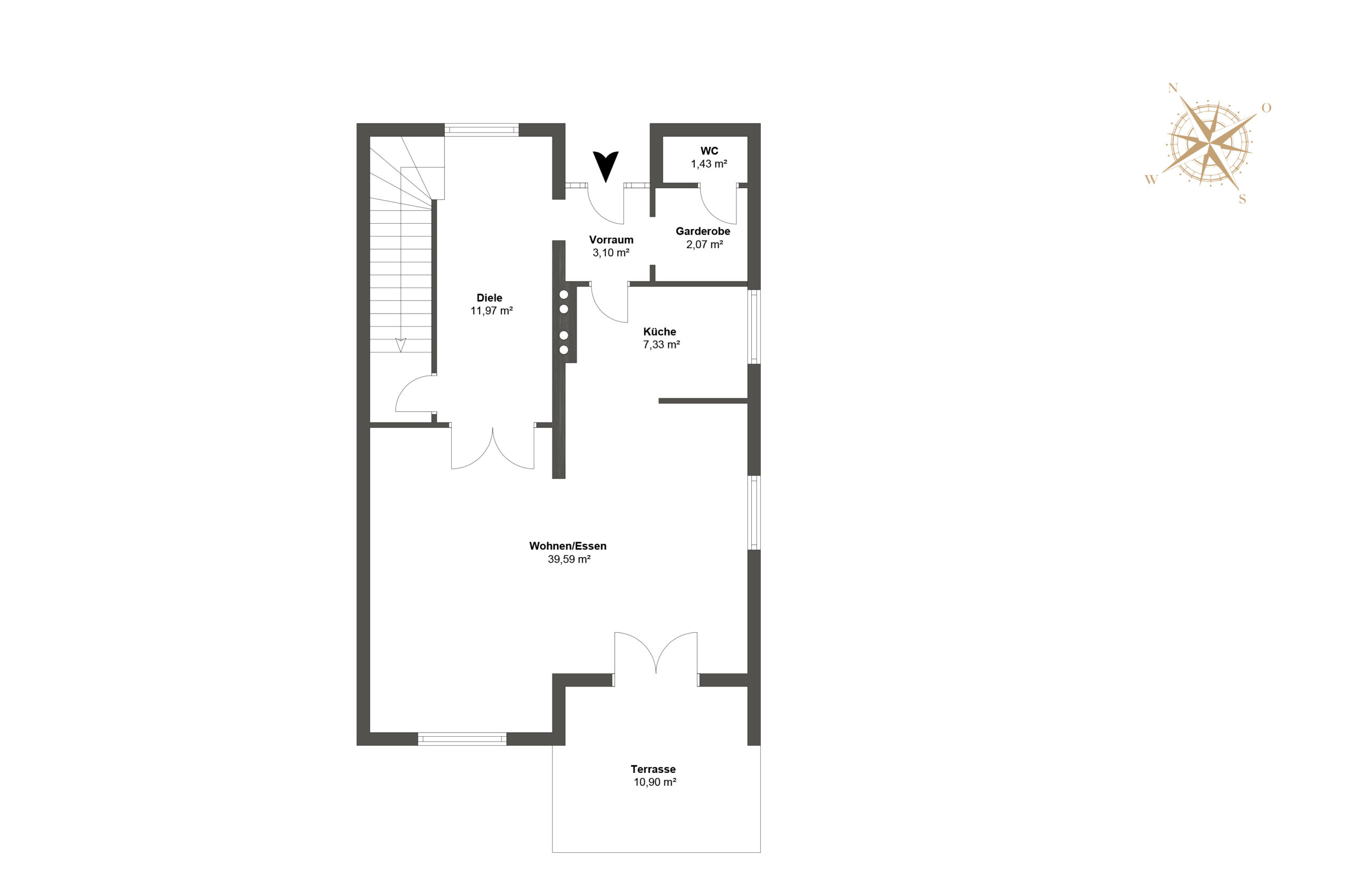
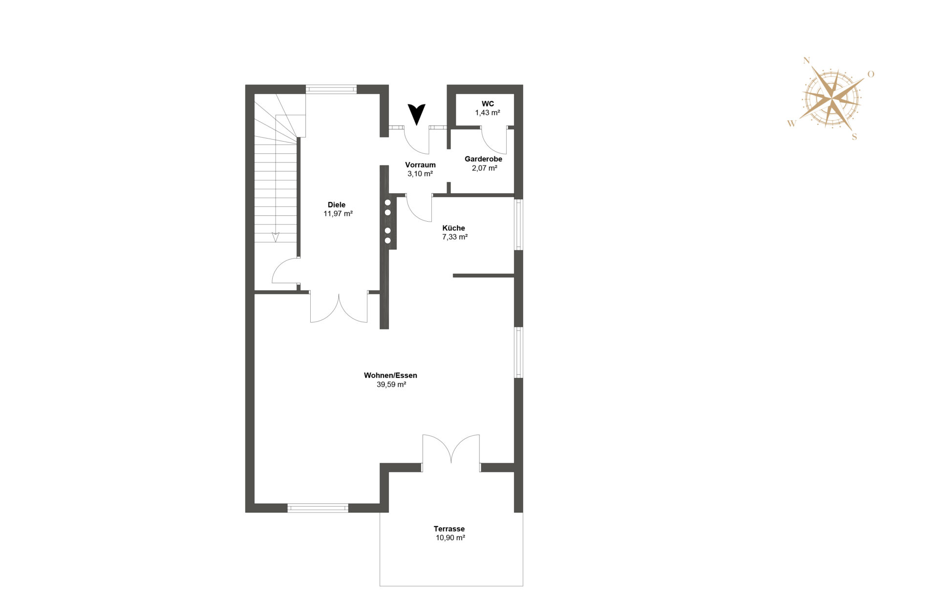
Raumaufteilung

Vorraum
Geräumige Diele
Garderobe
Gäste-WC
Küche
Wohnzimmer mit Essbereich
Terrasse und Garten

3 Schlafzimmer
2 Badezimmer
Gäste-WC
Balkon mit Ost-/Süd-/
West-Ausrichtung

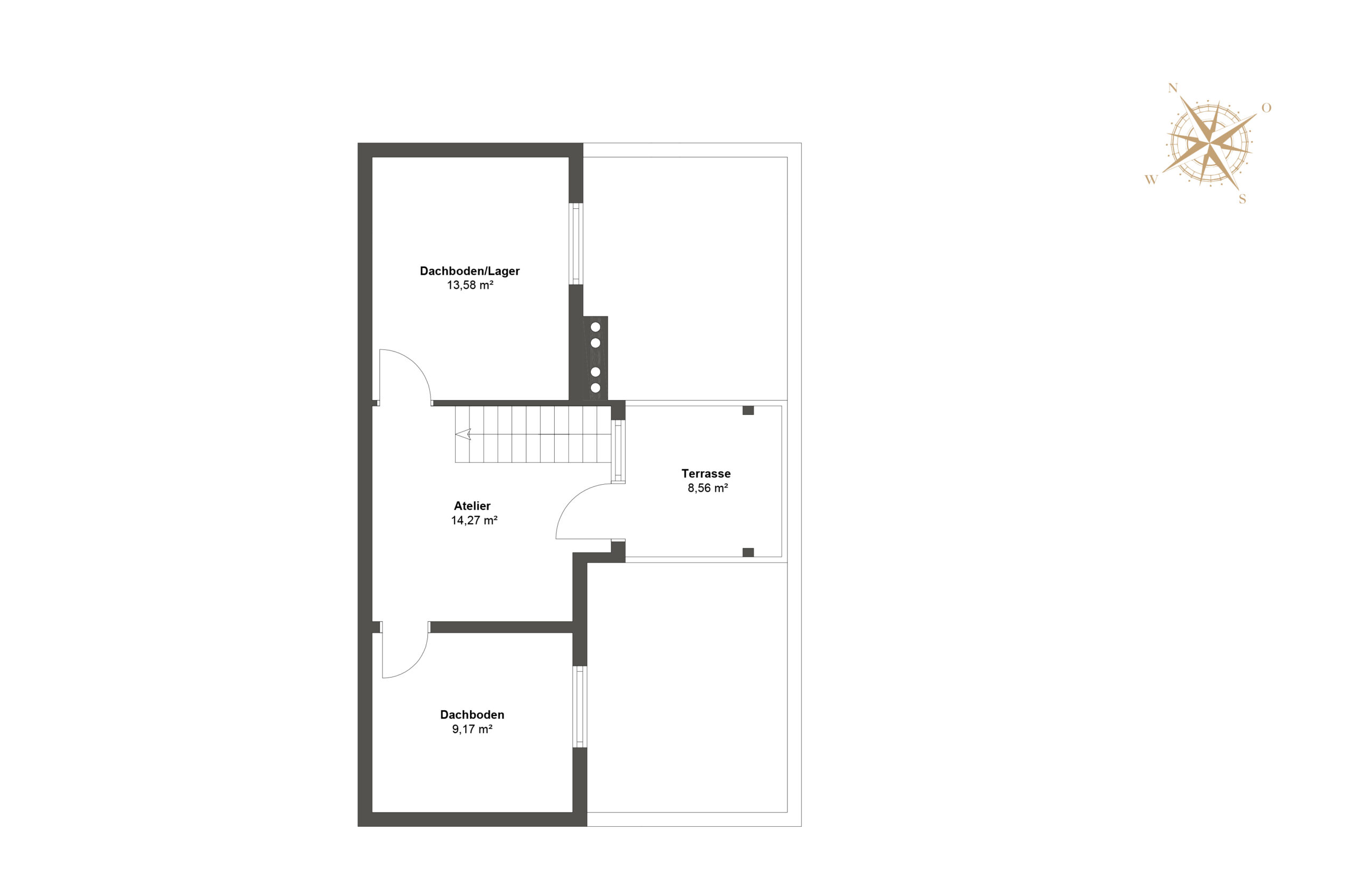
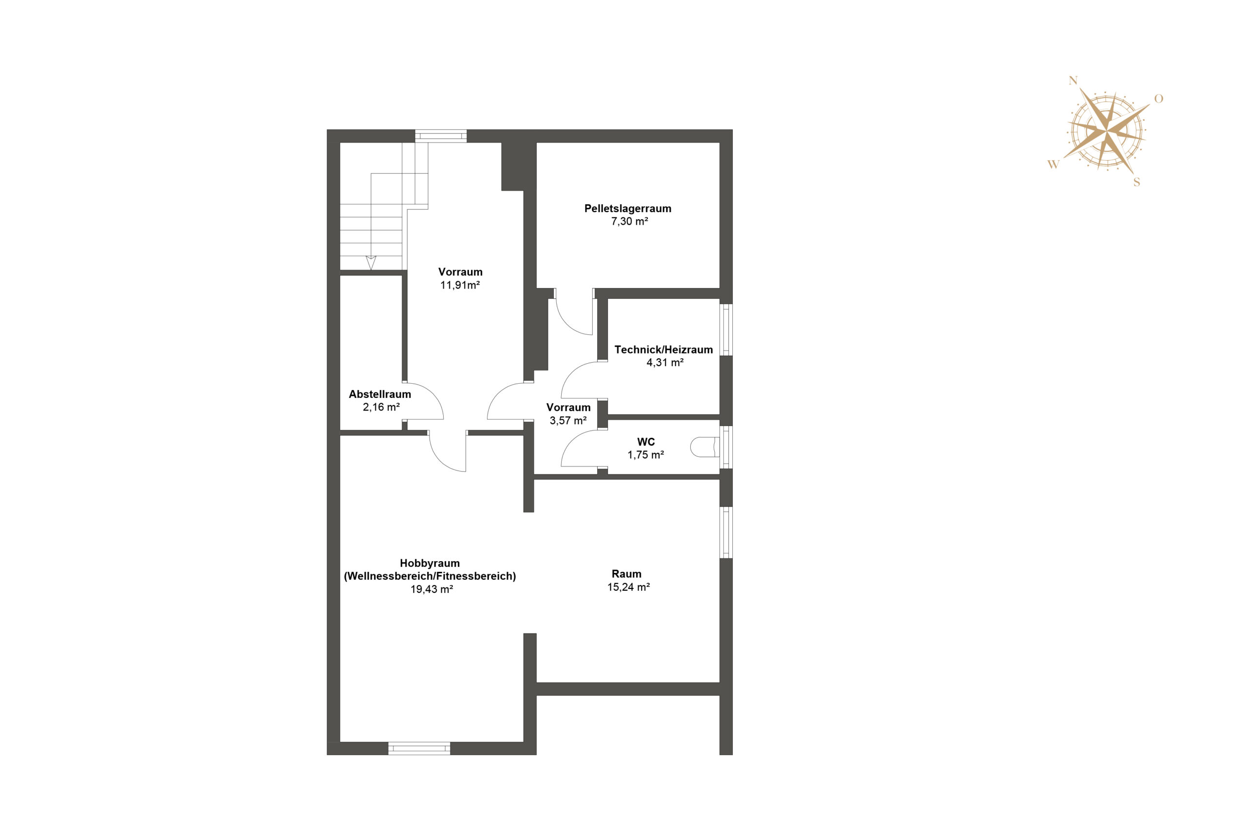
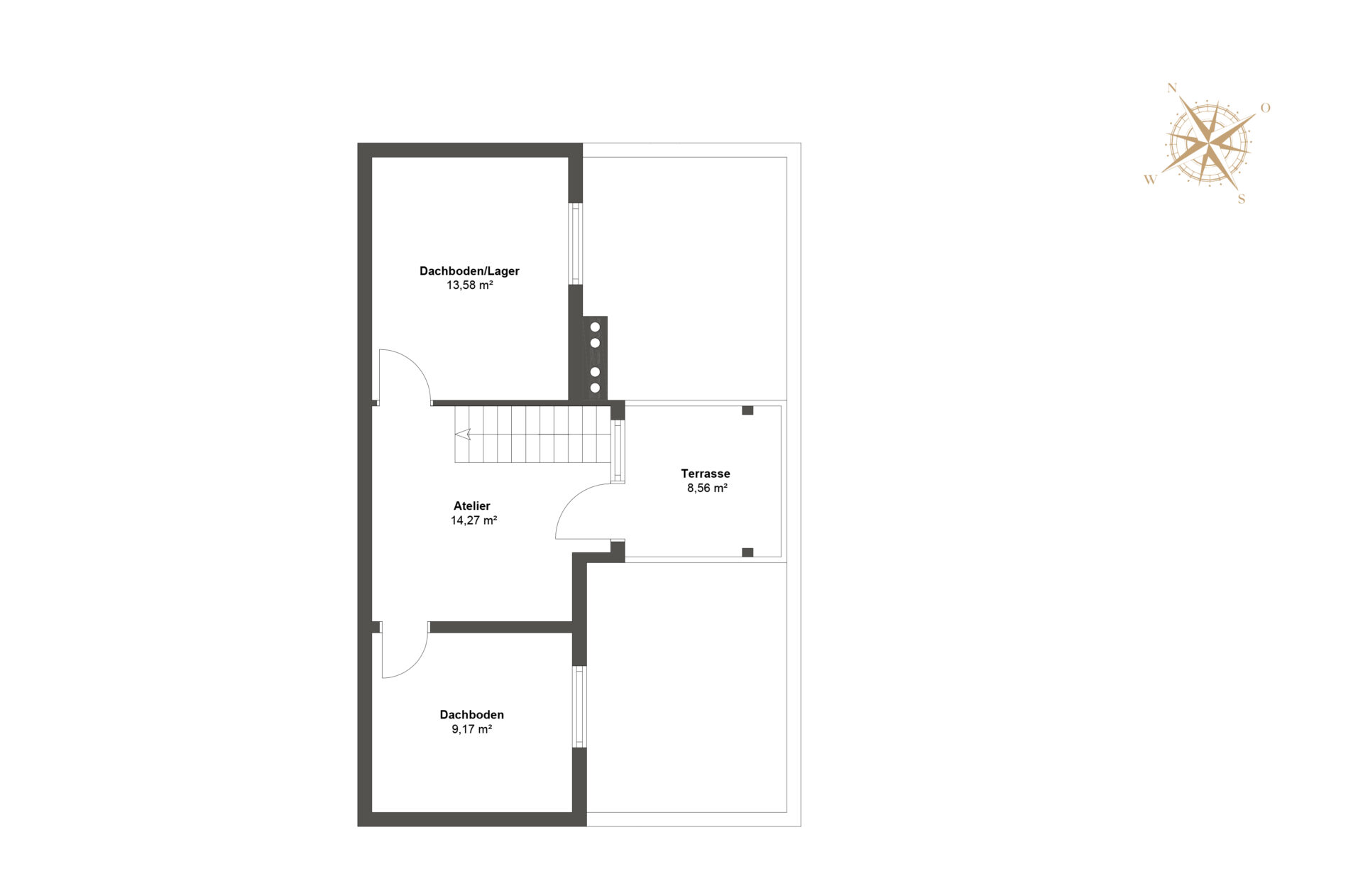
Derzeit: Lagerraum/Dachboden
Ausbaumöglichkeit:
siehe Beispielvariante
für mögliche Gestaltung

Vorraum
Abstellraum
Hobby-/Lagerraum
WC
Technik/Heizraum
Pelletslagerraum

Objektdetails

  • Objektart Doppelhaushälfte mit Freizeitwohnsitz
  • Ort Kitzbühel
  • Baujahr Erstbezug 1980
  • Geschosse 4 (Dachgeschoss noch
    nicht ausgebaut)
  • Zustand gepflegter Zustand
  • Verfügbarkeit nach Absprache
  • Grundstücksfläche 432 m2
  • Wohn-Nutzfläche 126,28 m² WFL mit Freizeitwohnsitz
    98,38 m² NFL +  22,75m² Dachboden
  • Terrassenflächen ca. 16 m2
  • Balkonfläche ca. 24 m2
  • Gartenfläche 332,90 m2
  • Zimmer 4
  • Schlafzimmer 3
  • Badezimmer 2
  • WC 3
  • Lagerraum ja
  • Keller voll unterkellert
  • PKW-Garagenstellplätze 1
  • PKW-Außenstellplätze 1
  • Heizungsart Pellets Zentralheizung
  • HWB in Arbeit
  • Kaufpreis € 2,95 Mio.
  • Vermittlungsprovision 3 % zzgl. 20 % USt.

Exposé anfordern

Tina PühringerLIVING DELUXE AMBASSADOR KITZBÜHEL

tina.puehringer@livingdeluxe.com
+43 664 42 65 618

WEITERE PREMIUM-IMMOBILIEN

Die Mission von LIVING DELUXE Real Estate ist es, Qualität, Exklusivität und Luxus in die Welt zu tragen. Mit unseren herausragenden Immobilien inspirieren wir Menschen mit hohem Anspruch, in einem unvergleichbaren Zuhause zu leben.